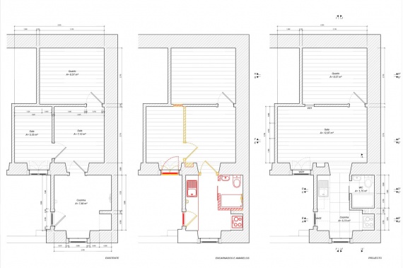
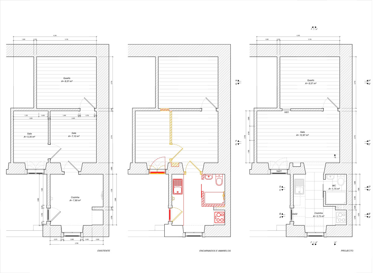
Projecto que visava recuperar um espaço habitacional sem grandes condições para o efeito, não tendo casa de banho, cozinha e pouca luminosidade natural.
Num espaço exíguo, com apenas 27m2, privilegiou-se a simplicidade, funcionalidade e a entrada de luz.